Dryer Conveyance Optimization

Categories
BY Cyberoptik | April 6, 2021 | Case Study , Chain-Vey
 

Pet Perfecta* is a major pet food manufacturer and distributor with a wide product offering of dry food for domestic pets worldwide.


Objective and Past Equipment

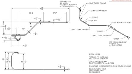
Perfecta needed a new way to convey post-dryer kibble to a screener for one of their final processes in kibble production. Bucket elevators were in place, but their bulky footprint and static design were an operational nightmare for the facility’s increasingly tight space. Additionally, bucket elevators were degrading product at a rapid rate which took more resources than usual to reprocess the extra fines created. Finally, Perfecta’s Quality Control emphasized the need for easier and more frequent cleaning to minimize cross contamination of flavorings and allergens when switching recipes. This combination of issues is what led Perfecta to enlist MPE to engineer a Chain-Vey tube conveyor for them.


Chain-Vey Solution

Chain-Vey solved the layout problem with its flexible and modular design capabilities – Chain-Vey can go horizontal, vertical, around, through – all in one compact, continuous path. Its modular design allows for future flexibility in operational changes as well as accommodating new ancillary equipment. To add, the gentle yet robust conveyance fully preserves the product integrity to minimize kibble fines and reduce the reprocess resources needed. In turn, the Perfecta pooches receive full-size flavor and chew profile of each kibble piece. Last but not least, Perfecta’s Quality Control and distribution finally reached harmonization with the quick and easy clean-out capabilities of Chain-Vey in addition to the systems being self-cleaning by nature. Cleaning cycles now take much less time and effort which gets much more kibble into food bowls quicker.

Chain-Vey Replacement for Main Product Lines

Chain-Vey Replacement for Kibble Reclaim


Result

Modern Process Equipment provided and commissioned (2) Mega 8 inch Chain-Vey’s systems for Perfecta – the systems successfully convey upwards of 50,000 lb of kibble per hour each. Perfecta’s satisfaction with the new conveyors led to another project for 3 inch Chain-Vey’s where kibble fines could be brought to the rework operation in one system – eliminating multiple screw conveyors and manual tote dumping that were needed at each station previously.
Perfecta prides themselves on providing their furry friends the absolute best product for their growth and health and Modern Process Equipment was honored to assist Perfecta along the way in their continued excellence.

* Pet Perfecta is a fictitious name of a real customer of MPE’s.