Un grand torréfacteur nord-américain avait besoin de construire une nouvelle usine de torréfaction de café. Les ingénieurs de MPE Systems Group ont géré le projet de la conception à la mise en service.
De la préconception à la mise en service, le projet s’est étendu sur environ un an. Le projet a été achevé à temps, malgré la pandémie de coronavirus. L’engagement de MPE dans le projet est peut-être mieux illustré par un ingénieur système qui est resté sur place pendant une phase de confinement pour s’assurer que le système était installé et démarré sans aucun problème.
Prise d’eau à partir de sacs en toile de jute
Points forts de la découpeuse automatique de sacs :
- Déballage de 60 000 lb/h (27 000 kg/h) de café vert.
- Un seul opérateur peut faire fonctionner en toute sécurité l’ouvre-sac, recevoir les palettes des camions ou de l’entrepôt à proximité, et retirer les palettes empilées et les sacs vides.
- Les produits finis sont automatiquement acheminés vers l’étape suivante du processus, dans ce cas le nettoyage, le pesage final et le stockage.
- Taux d’attrition typique de seulement 0,02 % à 0,05 % du café vert perdu. Jusqu’à 99,98 % du café vert est déboché avec succès.
- Empilage automatique de huit (8) palettes vides pour un retrait facile avec un chariot élévateur.
- Les systèmes de dépoussiérage intégrés maintiennent la zone propre et presque sans poussière.
- Aucun travail physique intense et répétitif n’est requis.
Pour en savoir plus sur la découpeuse automatique de sacs, cliquez ici.
Attrape-cordes et nettoyage
- Le café passe d’abord à travers un récupérateur de ficelle, qui, comme son nom l’indique, récupère tous les restes de ficelle en toile de jute dans laquelle le café a été expédié.
- Le café vert passe ensuite dans un nettoyeur de grains, qui élimine tous les débris, la saleté ou les grains non conformes du processus.
- Le café est ensuite transporté à travers un convoyeur pneumatique dans un aimant qui garantit qu’aucun métal ferreux ou non ferreux n’est arrivé aussi loin dans le processus.
- Ensuite, le café passe à travers un détecteur de métaux avec une vanne de rejet automatique, ce processus garantit une perte de produit minimale, tout en maintenant une sécurité sans compromis du produit.
- Le café tombe ensuite dans une peseuse en vrac qui mesure des incréments de 500 lb (227 kg).
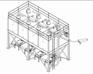
Stockage vert
- Le réseau de stockage de haricots verts comprend (8) silos d’une capacité de 20 000 lb (9 072 kg).
- Les silos de stockage de haricots verts sont alimentés à l’aide d’un système pneumatique avec des vannes de dérivation à trois voies.
- Des déviateurs à tube flexible sont utilisés dans ce système, ce qui permet de réduire la casse des grains par rapport aux déviateurs à tube rigide.
- Le café vert quitte les silos et est mesuré à l’aide de courroies de pesée, qui sont très précises et permettent au système de distribuer correctement de manière contiguë, assurant ainsi un fonctionnement efficace et le respect des recettes.
- (2) Des convoyeurs tubulaires Chain-Vey de 5″ de diamètre transportent le café des silos de stockage verts à l’équipement de torréfaction. Pour en savoir plus sur les convoyeurs traînants pour le transport du café , cliquez ici.
Stockage et mélange après la torréfaction
- (6) Des Chain-Veys de 4 po de diamètre transportent le café des torréfacteurs aux silos de post-torréfaction.
- Le réseau de stockage de grains post-torréfaction comprend (4) silos d’une capacité de 5 000 lb (2 268 kg).
- Un mélangeur à palettes avec des portes Bombay, comme on les appelle dans l’industrie, se trouve sous les silos.
- Le système de stockage et de mélange torréfié se vide dans des Chain-Veys situés en dessous, qui transportent le café vers des stations de remplissage de super-sacs et une trémie roulante.













