Un gran tostador norteamericano necesitaba construir una nueva planta tostadora de café. Los ingenieros de MPE Systems Group gestionaron el proyecto desde su concepción hasta su puesta en marcha.
Desde el prediseño hasta la puesta en marcha, el proyecto duró aproximadamente un año. El proyecto se completó a tiempo, a pesar de la pandemia de coronavirus. El compromiso de MPE con el proyecto quizás se ejemplifique mejor con un ingeniero de sistemas que permaneció en el sitio durante una fase de bloqueo para garantizar que el sistema se instalara y arrancara sin ningún problema.
Ingesta de sacos de arpillera
Aspectos destacados de la cortadora automática de bolsas:
- Desembolsado de 60,000 lb/h (27,000 kg/hr) de café verde.
- Un solo operador puede operar de manera segura el abridor de bolsas, recibir paletas de camiones o almacenes cercanos y retirar paletas apiladas y bolsas vacías.
- Los productos terminados se transportan automáticamente al siguiente paso del proceso, en este caso la limpieza, el pesaje final y el almacenamiento.
- Tasa de deserción típica de solo 0.02% a 0.05% de café verde perdido. Hasta el 99,98% del café verde se desembolsa con éxito.
- Apilamiento automático de ocho (8) palets vacíos para su fácil extracción con montacargas.
- Los sistemas integrados de recolección de polvo mantienen el área limpia y casi libre de polvo.
- No se requiere trabajo físico extenuante y repetitivo.
Lea más sobre la cortadora automática de bolsas aquí.
Recogedor de cuerdas y limpieza
- El café pasa primero a través de un recogedor de cuerdas, que como su nombre lo describe, atrapa cualquier resto de cuerda de arpillera en la que se envió el café.
- Luego, el café verde pasa a través de un limpiador de granos, que elimina cualquier residuo, suciedad o granos fuera de especificación del proceso.
- Luego, el café se transporta a través de un transportador neumático a un imán que garantiza que ningún metal ferroso o no ferroso llegue tan lejos en el proceso.
- Luego, el café fluye a través de un detector de metales con una válvula de rechazo automático, este proceso garantiza una pérdida mínima de producto, al tiempo que mantiene la seguridad del producto sin concesiones.
- Luego, el café cae en una báscula a granel que mide incrementos de 500 lb (227 kg).
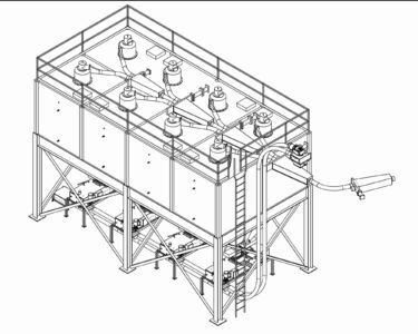
Almacenamiento ecológico
- La matriz de almacenamiento green bean consta de (8) silos de 20.000 lb (9.072 kg) de capacidad.
- Los silos de almacenamiento de judías verdes se alimentan mediante neumática con válvulas de desvío de tres vías.
- En este sistema se utilizan desviadores de tubo flexible, que conducen a menos roturas de frijol en comparación con los desviadores de tubo rígido.
- El café verde sale de los silos y se mide mediante cintas de pesaje, que son muy precisas y permiten que el sistema dispense correctamente de forma contigua, lo que garantiza un funcionamiento eficiente y el cumplimiento de la receta.
- (2) Los transportadores de arrastre tubulares Chain-Vey de 5″ de diámetro transportan el café desde los silos de almacenamiento verde hasta el equipo de tostado. Lea más sobre los transportadores de arrastre para el transporte de café aquí.
Almacenamiento y mezcla después del tueste
- (6) Las Chain-Veys de 4″ de diámetro transportan el café desde los tostadores hasta los silos posteriores al tueste.
- La matriz de almacenamiento de granos post-tostado comprende (4) silos de 5,000 lb (2,268 kg) de capacidad.
- Una batidora de paletas con puertas Bombay, como se les conoce en la industria, se encuentra debajo de los silos.
- El sistema de almacenamiento y mezcla de tostados se vacía en Chain-Veys debajo, que transportan el café a una estación de llenado de supersacos y una tolva rodante.













