Pet Perfecta* es un importante fabricante y distribuidor de alimentos para mascotas con una amplia oferta de productos de alimentos secos para mascotas domésticas en todo el mundo.
Objetivo y equipo pasado
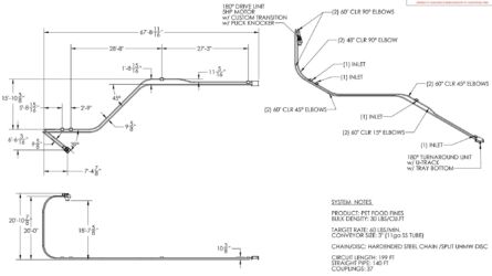
Perfecta necesitaba una nueva forma de transportar las croquetas posteriores al secado a una criba para uno de sus procesos finales en la producción de croquetas. Los elevadores de cangilones estaban en su lugar, pero su huella voluminosa y su diseño estático eran una pesadilla operativa para el espacio cada vez más reducido de la instalación. Además, los elevadores de cangilones degradaban el producto a un ritmo rápido, lo que requería más recursos de lo habitual para reprocesar los finos adicionales creados. Finalmente, el Control de Calidad de Perfecta enfatizó la necesidad de una limpieza más fácil y frecuente para minimizar la contaminación cruzada de saborizantes y alérgenos al cambiar de receta. Esta combinación de problemas es lo que llevó a Perfecta a reclutar a MPE para diseñar un transportador tubular Chain-Vey para ellos.
Solución Chain-Vey
Chain-Vey resolvió el problema de diseño con sus capacidades de diseño flexibles y modulares: Chain-Vey puede ir horizontal, vertical, alrededor, a través, todo en un camino compacto y continuo. Su diseño modular permite la flexibilidad futura en los cambios operativos, así como la adaptación de nuevos equipos auxiliares. Además, el transporte suave pero robusto preserva completamente la integridad del producto para minimizar los finos de croquetas y reducir los recursos de reprocesamiento necesarios. A su vez, los perros Perfecta reciben un sabor y un perfil de masticación de tamaño completo de cada pieza de croquetas. Por último, pero no menos importante, el control de calidad y la distribución de Perfecta finalmente lograron armonizarse con las capacidades de limpieza rápida y fácil de Chain-Vey, además de que los sistemas son autolimpiantes por naturaleza. Los ciclos de limpieza ahora requieren mucho menos tiempo y esfuerzo, lo que hace que muchas más croquetas lleguen a los tazones de comida más rápido.
Reemplazo de cadenas para líneas de productos principales
Reemplazo de Chain-Vey para Kibble Reclaim
Resultado
Modern Process Equipment proporcionó y puso en marcha (2) sistemas Mega 8 inch Chain-Vey para Perfecta: los sistemas transportan con éxito más de 50,000 libras de croquetas por hora cada uno. La satisfacción de Perfecta con los nuevos transportadores llevó a otro proyecto para Chain-Vey’s de 3 pulgadas, donde los finos de croquetas se podían llevar a la operación de retrabajo en un solo sistema, eliminando los múltiples transportadores de tornillo y el volcado manual de contenedores que se necesitaban en cada estación anteriormente.
Perfecta se enorgullece de proporcionar a sus amigos peludos el mejor producto para su crecimiento y salud, y Modern Process Equipment tuvo el honor de ayudar a Perfecta en el camino hacia su continua excelencia.
* Pet Perfecta es un nombre ficticio de un cliente real de MPE’s.




