Uma grande torrefadora norte-americana precisava construir uma nova fábrica de torrefação de café. Os engenheiros do MPE Systems Group gerenciaram o projeto desde a concepção até o comissionamento.
Do pré-projeto ao comissionamento, o projeto durou cerca de um ano. O projeto foi concluído no prazo, apesar da pandemia do Coronavírus. O compromisso da MPE com o projeto talvez seja melhor exemplificado por um engenheiro de sistemas que permaneceu no local durante uma fase de bloqueio para garantir que o sistema fosse instalado e iniciado sem problemas.
Entrada de sacos de estopa
Destaques da talhadeira automática de sacos:
- Desensacamento de 60.000 lb/h (27.000 kg/h) de café verde.
- Um único operador pode operar com segurança o abridor de sacos, receber paletes de caminhões ou armazéns próximos e remover paletes empilhados e sacos vazios.
- Os produtos acabados são transportados automaticamente para a próxima etapa do processo, neste caso, limpeza, pesagem final e armazenamento.
- Taxa de atrito típica de apenas 0,02% a 0,05% de café verde perdido. Até 99,98% do café verde é desensacado com sucesso.
- Empilhamento automático de oito (8) paletes vazios para fácil remoção com empilhadeira.
- Os sistemas integrados de coleta de poeira mantêm a área limpa e quase livre de poeira.
- Zero trabalho físico extenuante e repetitivo necessário.
Leia mais sobre a talhadeira automática de sacos aqui.
Coletor de Cordas & Limpeza
- O café passa primeiro por um coletor de barbante, que, como o nome descreve, pega qualquer resquício de barbante de estopa em que o café foi enviado.
- O café verde então passa por um limpador de grãos, que remove quaisquer detritos, sujeira ou grãos fora das especificações do processo.
- O café é então transportado através de um transportador pneumático para um ímã que garante que nenhum metal ferroso ou não ferroso tenha chegado tão longe no processo.
- Em seguida, o café flui através de um detector de metais com uma válvula de rejeição automática, este processo garante uma perda mínima de produto, mantendo a segurança intransigente do produto.
- O café então cai em uma balança a granel que mede incrementos de 500 lb (227 kg).
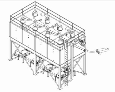
Armazenamento verde
- A matriz de armazenamento de feijão verde compreende (8) silos com capacidade de 20.000 lb (9.072 kg).
- Os silos de armazenamento de feijão verde são alimentados por pneumática com válvulas desviadoras de três vias.
- Os desviadores de tubo flexível são usados neste sistema, o que leva a menos quebra do grão em comparação com os desviadores de tubo rígido.
- O café verde sai dos silos e é medido por meio de esteiras de pesagem, que são muito precisas e permitem que o sistema dispense adequadamente de forma contígua, garantindo uma operação eficiente e aderência à receita.
- (2) Os transportadores tubulares Chain-Vey de 5″ de diâmetro transportam o café dos silos de armazenamento verde para o equipamento de torrefação. Leia mais sobre transportadores de arrasto para transporte de café aqui.
Armazenamento e Mistura Pós-Torrefação
- (6) Corrente-Veys de 4″ de diâmetro transportam café dos torradores para os silos pós-torra.
- A matriz de armazenamento de grãos pós-torrada compreende (4) silos com capacidade de 5.000 lb (2.268 kg).
- Um liquidificador de pás com portas Bombaim, como são conhecidas na indústria, fica abaixo dos silos.
- O sistema de armazenamento e mistura torrado deságua em Chain-Veys abaixo, que transportam o café para estações de enchimento de supersacos e tremonha.













