Maize Processors* is een full-service droogmaalbedrijf voor maïs ongeveer anderhalf uur buiten Des Moines, IA. Maïs maakt een scala aan basisproducten voor consumenten en producenten, zoals grutten, meel en meel.
De faciliteit is slechts ongeveer 20 jaar oud en wordt voortdurend geüpgraded met de nieuwste grootschalige verwerkingsapparatuur. Voordat ze hun transportbanden upgraden, hadden ze een nieuwe zeef aangeschaft om de consistentie van hun maïsmeel en maïsmeel te verbeteren. Vooral na het zeven is het voorkomen van segregatie een prioriteit om het zeefproces niet teniet te doen. Managers van maïsfabrieken wisten dat pneumatiek geen optie zou zijn, en omdat de transportbanden zouden worden blootgesteld aan de elementen van buitenaf, wilden ze een volledig gesloten ontwerp.
Objectieve en vroegere uitrusting
Maïs was eigenlijk een gebruiker van kabelbuisvormige sleeptransportbanden. Ze zochten specifiek naar een kettingalternatief om de verschillen tussen kabel- en kettingbuisvormige sleeptransporteurs zelf te evalueren.
Fabrieksmanagers definieerden de doelstellingen van wat ze wilden:
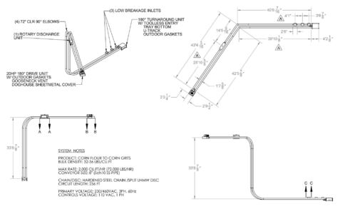
- Een transportsysteem dat3 per uur meer dan 2.000 ft kan bewegen
- Volledig sanitair
- Zacht voor het meel en de grutten, om geen zeef te introduceren of extra fijne deeltjes te creëren
Chain-Vey-oplossing
MPE ontwierp twee systemen:
Recirculerend systeem
- Maximale transportsnelheid van 2.000 ft3/uur
- De getransporteerde maïsgrutten hebben een bulkdichtheid van 32-36 lb/ft3
- Ketting van koolstofstaal, met gesplitste UHMW-schijven
- 15 pk motor
- Volledige circuitlengte van 117 ft
Afhaal systeem
- Maximale transportsnelheid van 2.000 ft3/uur
- De getransporteerde maïsgrutten hebben een bulkdichtheid van 32-36 lb/ft3
- Ketting van koolstofstaal, met gesplitste UHMW-schijven
- 20 pk motor
- Volledige circuitlengte van 236 ft
Resultaat
De twee Chain-Veys zijn medio 2020 in gebruik genomen en werken perfect en zonder problemen, zoals beloofd door de ingenieurs van Chain-Vey. 2.000 ft3/uur transport wordt bereikt, het zelfreinigende ontwerp biedt gemoedsrust met betrekking tot sanitaire voorzieningen en er treedt geen waarneembare segregatie op. Maize overweegt momenteel om andere transportbanden met behulp van kabel en schijven aan de binnenkant om te zetten in een keten, met het Cable-to-Chain-Vey Retrofit System.
Liep vandaag op 77.000 lb/uur met 38 lb/ft3 product. Volgens uw specificatie van 2.000 ft3/hr liggen we precies op schema. Dat was [zeer efficiënt] bij 13,5 ampère. Ongeveer 80% zakvulniveau. We hebben een knelpunt voor deze transportband waar we doorheen zullen proberen te werken. Ik heb het gevoel dat we de rente wat kunnen verhogen, misschien tot 90% zakvulling. Ook hebben we de transportband onder belasting gestopt en opnieuw opgestart. Slechts 14,5 ampère piekt bij het opnieuw opstarten. Zeer degelijk gebouwd!
Ricky Jimenez, hoofd onderhoud kapitaalgoederen, maïs
De eerste run van ons andere product van vandaag dat gebruikmaakt van de recirculerende transportband toonde in wezen geen productdegradatie bij lozing, wat uitstekend is en lijkt overeen te komen met de eerste tests die zijn uitgevoerd voordat deze apparatuur werd gebruikt.
Todd Kern, fabriekssupervisor, maïs
Neem contact op met uw Chain-Vey-verkoopingenieur voor meer informatie over een systeem dat is gebouwd rond uw behoeften. U kunt hier contact met ons opnemen of bellen naar +1-773-254-3929.




