Optimalisatie van het drogertransport

Categories
BY Cyberoptik | april 6, 2021 | Casestudy , Ketting-Vey
 

Pet Perfecta* is een grote fabrikant en distributeur van diervoeding met een breed productaanbod van droogvoer voor huisdieren wereldwijd.


Objectieve en vroegere uitrusting

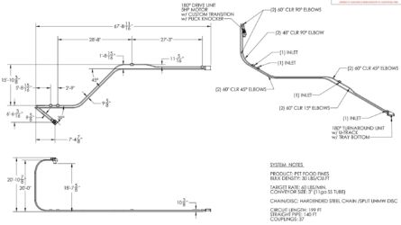
Perfecta had een nieuwe manier nodig om brokken na de droger naar een zeef te transporteren voor een van hun laatste processen in de productie van brokjes. Er waren bekerliften aanwezig, maar hun omvangrijke voetafdruk en statische ontwerp waren een operationele nachtmerrie voor de steeds krapper wordende ruimte van de faciliteit. Bovendien degradeerden bekerelevatoren het product in een snel tempo, wat meer middelen dan normaal kostte om de extra fijne deeltjes opnieuw te verwerken. Ten slotte benadrukte de kwaliteitscontrole van Perfecta de noodzaak van een eenvoudigere en frequentere reiniging om kruisbesmetting van smaakstoffen en allergenen bij het wisselen van recepten te minimaliseren. Deze combinatie van problemen heeft Perfecta ertoe gebracht MPE in te schakelen om een Chain-Vey buizentransporteur voor hen te ontwikkelen.


Chain-Vey-oplossing

Chain-Vey loste het lay-outprobleem op met zijn flexibele en modulaire ontwerpmogelijkheden – Chain-Vey kan horizontaal, verticaal, rond, door gaan – allemaal in één compact, doorlopend pad. Het modulaire ontwerp zorgt voor toekomstige flexibiliteit bij operationele veranderingen en biedt plaats aan nieuwe hulpapparatuur. Bovendien behoudt het zachte maar robuuste transport de productintegriteit volledig om fijne brokjes te minimaliseren en de benodigde herverwerkingsmiddelen te verminderen. Op hun beurt krijgen de Perfecta-puppy’s een full-size smaak en kauwprofiel van elk brokje. Last but not least is de kwaliteitscontrole en distributie van Perfecta eindelijk geharmoniseerd met de snelle en gemakkelijke reinigingsmogelijkheden van Chain-Vey, naast het feit dat de systemen van nature zelfreinigend zijn. Reinigingscycli kosten nu veel minder tijd en moeite, waardoor er sneller veel meer brokjes in de voerbakken terechtkomen.

Chain-Vey vervanging voor de belangrijkste productlijnen

Chain-Vey vervanging voor het terugwinnen van brokjes


Resultaat

Moderne procesapparatuur geleverd en in bedrijf gesteld (2) Mega 8 inch Chain-Vey’s systemen voor Perfecta – de systemen transporteren met succes meer dan 50.000 lb brokjes per uur per stuk. Perfecta’s tevredenheid met de nieuwe transportbanden leidde tot een ander project voor 3 inch Chain-Vey’s, waar fijne brokjes in één systeem konden worden gebruikt voor de herbewerking – waardoor meerdere schroeftransporteurs en het handmatig storten van bakken werden geëlimineerd die voorheen op elk station nodig waren.
Perfecta is er trots op hun harige vrienden het absoluut beste product voor hun groei en gezondheid te bieden en Modern Process Equipment was vereerd om Perfecta op weg te helpen bij hun voortdurende uitmuntendheid.

* Pet Perfecta is een fictieve naam van een echte klant van MPE’s.