Maize Processors* ist ein Full-Service-Maistrockenmahlbetrieb etwa eineinhalb Stunden außerhalb von Des Moines, IA. Mais stellt eine Reihe von Grundnahrungsmitteln für Verbraucher und Erzeuger her, wie z. B. Grütze, Mehl und Mehl.
Die Anlage ist erst etwa 20 Jahre alt und wird kontinuierlich mit den neuesten Großverarbeitungsanlagen aufgerüstet. Vor der Aufrüstung ihrer Förderanlagen hatten sie ein neues Sieb angeschafft, um die Konsistenz ihres Maismehls und Maismehls zu verbessern. Insbesondere nach der Sichtung steht die Vermeidung von Entmischungen im Vordergrund, um den Sichtungsprozess nicht zu negieren. Die Manager des Maiswerks wussten, dass Pneumatik keine Option sein würde, und da die Förderbänder den äußeren Elementen ausgesetzt sein würden, wollten sie eine vollständig geschlossene Konstruktion.
Zielsetzung und bisherige Ausstattung
Maize war eigentlich ein Anwender von Seilrohrschleppern. Sie suchten gezielt nach einer Kettenalternative, um die Unterschiede zwischen Seil – und Kettenrohrschleppern für sich zu bewerten.
Die Betriebsleiter definierten die Ziele, die sie wollten:
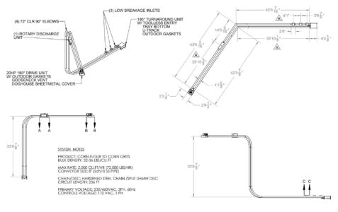
- Ein Fördersystem, das sich bis zu 2.000 ft3 pro Stunde bewegen kann
- Komplett hygienisch
- Schonend für die Mehle und Grütze, um keine Sichtung einzuführen oder zusätzliche Feinanteile zu erzeugen
Chain-Vey-Lösung
MPE entwarf zwei Systeme:
Umlaufsystem
- Maximale Transportgeschwindigkeit von 2.000 ft3/h
- Der geförderte Maisgrieß hat eine Schüttdichte von 32-36 lb/ft3
- Kette aus Kohlenstoffstahl, mit geteilten UHMW-Scheiben
- 15 PS Motor
- Komplette Schaltungslänge von 117 ft
Take-away-System
- Maximale Transportgeschwindigkeit von 2.000 ft3/h
- Der geförderte Maisgrieß hat eine Schüttdichte von 32-36 lb/ft3
- Kette aus Kohlenstoffstahl, mit geteilten UHMW-Scheiben
- 20 PS Motor
- Komplette Schaltungslänge von 236 ft
Ergebnis
Die beiden Chain-Veys wurden Mitte 2020 in Betrieb genommen und laufen einwandfrei und ohne Probleme, wie von den Chain-Vey-Ingenieuren versprochen. 2.000 ft3/h Transportgeschwindigkeit erreicht wird, bietet das selbstreinigende Design Sicherheit in Bezug auf die Hygiene und es tritt keine erkennbare Entmischung auf. Maize erwägt derzeit, andere Förderbänder mit Seilen und Scheiben im Inneren auf Kette umzurüsten, und zwar mit dem Cable-to-Chain-Vey Retrofit System.
Lief heute mit 77.000 lb/h mit 38 lb/ft3 Produkt. Gemäß Ihrer Spezifikation von 2.000 ft3/h liegen wir genau im Plan. Das war bei 13,5 Ampere sehr effizient. Etwa 80 % Taschenfüllstand. Wir haben einen Knackpunkt vor diesem Förderband, den wir versuchen werden, abzuarbeiten. Ich denke, wir könnten die Geschwindigkeit etwas erhöhen, vielleicht bis zu 90 % Pocket-Füllung. Außerdem haben wir das Förderband unter Last gestoppt und neu gestartet. Nur 14,5 Ampere Spitzen beim Neustart. Sehr gut gebaut!
Ricky Jimenez, Leiter der Instandhaltung von Investitionsgütern, Mais
Der erste Lauf unseres anderen Produkts, das den Umlaufförderer verwendet, zeigte im Wesentlichen keine Produktdegradation beim Entleeren, was hervorragend ist und mit den ersten Tests übereinzustimmen scheint, die vor der Einführung dieser Ausrüstung durchgeführt wurden.
Todd Kern, Betriebsleiter, Mais
Wenden Sie sich an Ihren Chain-Vey-Vertriebsingenieur, um mehr über ein System zu erfahren, das auf Ihre Anforderungen zugeschnitten ist. Sie können uns hier kontaktieren oder +1-773-254-3929 anrufen.




